250901 Exklusive Neubauwohnung (98 m2) in Colonia de Sant Jordi - Mallorca
Mallorca Wohnungskauf98
560.000
Eckdaten:
- Größe: 98 m2
- Kaufpreis: 560.000€
- Käuferprovision: 3,57 % inkl. MwSt. vom Käufer
- Verfügbar: 2026
- Lage: Colónia de Sant Jordi, Mallorca
Beschreibung:
Luxus trifft Leichtigkeit – Exklusive Neubauwohnung nur wenige Schritte vom Strand entfernt
In traumhafter Lage von Colonia de Sant Jordi, nur wenige Meter vom feinsandigen Strand Platja dels Estanys entfernt, erwartet Sie diese außergewöhnliche Neubauwohnung – ein perfekter Rückzugsort für alle, die Wert auf modernen Komfort, stilvolles Design und eine privilegierte Umgebung legen.
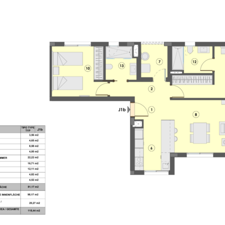
Die ca. 98 m² große Erdgeschosswohnung besticht durch ihre durchdachte Raumaufteilung und das offene Wohnkonzept. Mittelpunkt ist der großzügige Wohn-Essbereich mit integrierter, hochwertig ausgestatteter Küche, der durch große Fensterfronten lichtdurchflutet ist und direkten Zugang zur ca. 20 m² großen, teilweise überdachten Terrasse bietet – ideal für entspannte Stunden im Freien.
Zwei komfortable Schlafzimmer – eines davon mit eigenem Zugang zur Terrasse – sowie zwei elegante Bäder (eins en suite) schaffen ein behagliches Wohngefühl. Ein separater Hauswirtschaftsraum sorgt für zusätzlichen Stauraum und praktische Abläufe im Alltag.
Besonderes Augenmerk wurde auf die Ausstattung gelegt: Fußbodenheizung in den Bädern, Klimaanlage in allen Räumen sowie edle Materialien und Oberflächen schaffen eine exklusive Wohnatmosphäre. Darüber hinaus haben Käufer die Möglichkeit, verschiedene Ausstattungsdetails wie Farben, Fliesen, Bodenbeläge oder Küchenfronten ganz nach Wunsch innerhalb eines vorgegebenen Zeitrahmens zu personalisieren.
Zur Wohnung gehören selbstverständlich ein eigener Tiefgaragenstellplatz sowie ein separater Abstellraum.
Die Fertigstellung ist für November 2026 geplant – genug Zeit, um Ihren Einzug ganz entspannt zu organisieren und sich auf ein neues Lebenskapitel vorzubereiten.
Fazit: Diese Immobilie vereint stilvolles Wohnen mit höchster Lebensqualität in bester Lage – mit direktem Zugang zu Strand, Natur, Gastronomie und allen Annehmlichkeiten des charmanten Küstenorts Colonia de Sant Jordi.
Lassen Sie sich diese Chance nicht entgehen! Kontaktieren Sie uns noch heute für weitere Informationen oder zur Vereinbarung eines persönlichen Beratungstermins.
